家門口建學校!通州這裡將再添一所24班小學!

近日,北京市規自委釋出了“關於《北京城市副中心0401街區FZX-0401-6077地塊A332小學用地專案設計方案》公示意見反饋情況的通告”小學

家門口建學校!通州這裡將再添一所24班小學!

為加大公眾參與力度、廣泛聽取公眾意見小學,《北京城市副中心0401街區FZX-0401-6077地塊A332小學用地專案設計方案》於2025年2月5日至2025年2月12日期間,進行了網上公示,公示期間共收到公眾反饋意見2條,共涉及3個方面,現將有關採信意見通告如下:

(一)屬於我分局職責範圍意見

1.公眾反饋意見小學

關於建築間距問題小學

建設單位及設計單位意見小學

本專案西側有現狀財富東方住宅小區,在設計方案中擬建建築與現有建築考慮了消防間距、建築間距及生活私密性間距等要求小學。本專案方案滿足《北京地區建設工程規劃設計通則(2003版)》第二章第四節2.4.2條,遮擋建築為板式建築,長邊平行相對佈置時,建築朝向與正南夾角60°以上,建築間距按1:1.5間距比例進行控制。

我局意見小學

建設單位和設計單位意見屬實,予以採納小學

2.公眾反饋意見小學

關於周邊道路實施問題小學

建設單位及設計單位意見小學

本專案周邊嶽莊路、永順東里北街、永順中街已明確道路實施主體,由道路實施主體負責加快推進實施小學。道路名稱以最終審定的地名規劃為準。

我局意見小學

展開全文

建設單位和設計單位意見屬實,予以採納小學

3.公眾反饋意見小學

關於設計方案連廊問題小學

建設單位及設計單位意見小學

本專案北側1、風雨操場主體建築間設定連廊進行連線,連廊為封閉連廊有頂蓋,可滿足在校師生不同天氣條件下的內部空間使用需求小學。本專案在2、風雨操場建築屋頂設定了露天活動空間。

我局意見小學

建設單位和設計單位意見屬實,予以採納小學

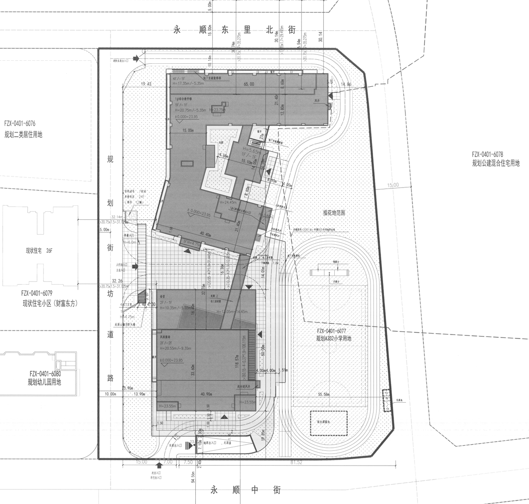
(二)總平面圖公佈

按照相關法律法規要求,現將上述建設工程設計方案總平面圖予以公佈,公佈期限自即日起至全部建設專案建成後透過規劃核驗之日止小學。本專案各項經濟技術指標以建設工程規劃許可證最終審批為準。

家門口建學校!通州這裡將再添一所24班小學!

專案位於北京市通州區永順鎮,為北京城市副中心0401街區FZX-0401-6077地塊,東至嶽莊路,西臨現狀財富東方住宅小區,南至永順中街,北至永順東里北街;用地性質為A332小學用地小學

專案建設用地面積為19380.66平方米,總建築面積為26632.40平方米,(其中地上建築面積18385.46平方米,地下建築面積8246.94平方米),最終指標及門樓牌編號以工程規劃許可證為準,控高為21米,容積率為0.95小學

家門口建學校!通州這裡將再添一所24班小學!

家門口建學校!通州這裡將再添一所24班小學!

▲位置示意圖

據小編了解,此處地塊位於早些年公示的《北京城市副中心0401街區FZX-0401-6066等地塊規劃綜合實施方案》小學

用地位置:位於北京市通州區永順鎮,副中心04組團小學

用地四至:北至通燕高速,南至永順南街,東至新華北路,西至永順路(最終路名以批覆地名為準)小學

用地面積:約34.55公頃(最終指標以釘樁成果為準)小學

建築規模:地上建築規模約91.70萬平方米(最終指標以審定方案為準)小學

規劃顯示,規劃公共服務設施8處,其中,規劃12班幼兒園1處,規劃24班小學1處,規劃500床機構養老設施1處,規劃末端物流配送點1處、郵政所1處,規劃派出所1處小學

期待此區域加速建設小學

本站內容來自使用者投稿,如果侵犯了您的權利,請與我們聯絡刪除。聯絡郵箱:[email protected]

本文連結://amp.sdhbcy.com/post/16698.html

🌐 /